2 / 128 Cottesloe Drive
ROBINA
- 3
- 2
- 1
- 215sqm
SOLD BY TINA NENADIC AND JULIANNE PETERSEN
CONTACT AGENT FOR VIEWING TIME
Welcome to 2/128 Cottesloe Drive, a single-level sanctuary designed for relaxed living, creative inspiration and effortless connection to beachside and urban amenities.
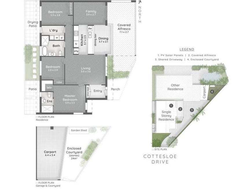
Tucked in a leafy pocket where Robina meets Mermaid Waters, this light-filled three-bedroom residence is a hidden gem with effortless charm. Surrounded by lush tropical landscaping, this solid single-level home invites a lifestyle of ease, where you can enjoy an afternoon barbecue in the private courtyard, or retreat indoors to unwind beneath soaring ceilings in your own creative sanctuary.
Perfectly suited to downsizers, creatives, professionals or small families, this property is designed for low-maintenance living without compromise on comfort or style. The layout is cleverly zoned for privacy, with the master suite positioned at the front of the home and two additional bedrooms tucked away in their own peaceful wing.
Inside, the interiors are warm and welcoming, with high ceilings, natural light and a flowing, open-plan design that feels instantly calming. The heart of the home is a central kitchen, ideal for entertaining or slow Sunday mornings, while the adjoining lounge and dining zones create space for connection, creativity and calm.
Step outside to your very own tropical haven-complete with a relaxed bar area, leafy surrounds and a separate courtyard, perfect for alfresco dining, hosting friends or playing a quiet game of chess in the shade.
Key Features:
- Solid rendered single-level home in a peaceful tropical setting
- 3 bedrooms, 2 bathrooms and a single lock-up garage
- Private master suite with walk-in robe and ensuite
- Bright open-plan living with high ceilings and air conditioning
- Practical open kitchen with modern appliances and excellent flow
- Inviting outdoor bar and low-maintenance garden courtyard
- 6kW solar system for sustainable, cost-efficient living
- Roof insulation added in the last 3 years
- Separate laundry, main bathroom with bath, and ample storage
- Ultra-convenient location close to shops, beaches and schools
This property places you in the heart of convenience, with everything from Robina Town Centre, Bond University and top-rated schools to Gold Coast beaches, hospitals, and major transport routes all just minutes away. Whether you're heading to CBUS Stadium for a Titans game, popping into the local café, or hopping on the M1 for a weekend escape, everything you need is right at your doorstep.
Robina is one of the Gold Coast's most sought-after master-planned communities, known for its family-friendly lifestyle, excellent infrastructure and proximity to beaches and hinterland. With over 36 parks, extensive bike paths, major shopping centres and education hubs like Bond University, it's a suburb that balances modern convenience with relaxed coastal living.
Disclaimer: While we have taken all reasonable care to ensure the accuracy of the information provided, we accept no responsibility and disclaim all liability for any errors, omissions, or inaccuracies that may occur. Photography used may be from a previous campaign and is provided for illustrative purposes only. Prospective purchasers are encouraged to conduct their own enquiries to verify the information contained herein.
Features
- Solid rendered single-level home in a peaceful tropical setting
- 3 bedrooms, 2 bathrooms and a single lock-up garage
- Private master suite with walk-in robe and ensuite
- Bright open-plan living with high ceilings and air conditioning
- Practical open kitchen with modern appliances and excellent flow
- Inviting outdoor bar and low-maintenance garden courtyard
- 6kW solar system for sustainable, cost-efficient living
- Roof insulation added in the last 3 years
- Separate laundry, main bathroom with bath, and ample storage
- Ultra-convenient location close to shops, beaches and schools


Make an enquiry
Get in contact with an agent now if you have any questions about this property.

















